
- 契約期間は1年(自動更新)
- 6ヶ月未満解約の場合は、保証金返金不可
- 車庫証明発行は、初回のみ賃料1ヶ月分必要
- 解約予告は1ヵ月前までに(日割り精算)
- 契約時、月の途中からであれば賃料部分日割り計算
- 添付書類:入庫車検証コピー1部,免許証コピー(表・裏)
- 仲介手数料:契約の際別途必要、賃料の1ヶ月分
~~~~~~~~~~~~~~~~~~~~~~~~~~~~~~~~~~~~~~~
≪ 篠原本町1丁目駐車場 ≫
■月極め駐車場■
所在地:神戸市灘区篠原本町1丁目8-1(住居表示)
交通:阪急線 『六甲』駅 徒歩8分
| 区画 | 賃料(税込) | 保証金 | 入居 | | 北側 | 30,000円 | 30,000円 | 即日 | | 南側 | 30,000円 | 30,000円 | 即日 |
***縦駐車3台可*** 前面4メートル道路
≪ ローレル三宮 ≫
■月極賃貸平面駐車場■
所在地:神戸市中央区琴ノ緒町1丁目6-1(住居表示)
交通:全線 『三宮』駅 徒歩10分
空き区画:3番
- 平面駐車場
- 賃料:25,000円
- 保証金:25,000円(6ヶ月以上契約の場合、解約時全額返金)
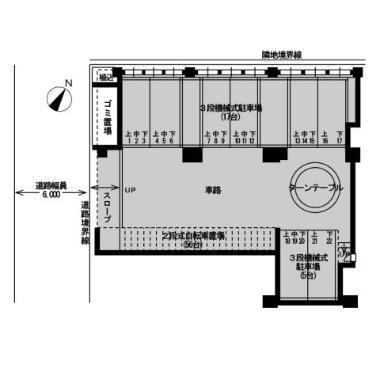
≪ ローレル三宮ノースアベニュー機械式駐車場 No.15/20/21/22 ≫
■月極賃貸駐車場■
所在地:神戸市中央区二宮町1丁目10-1(住居表示)
交通:JR線『三宮』駅 徒歩9分
空き区画:15(北下段)番 / 20(南下段)番 / 21(南上段)番 / 22(南下段)番
- ピット三段(上・中・下)式機械駐車場
- 賃料:18,000円
- 保証金:18,000円(6ヶ月以上契約の場合、解約時全額返金)
| 規定サイズ | | | | | | | | | | | | | ⇒車検証にて規定サイズに | | 全長 | 5,050㎜ まで | | | | | | | | | | | | 収まるかを必ず | | 全幅 | 1,850㎜ まで | | | | | | | | | | | | ご確認ください | | 高さ | 1,550㎜ まで | | | | | | | | | | | | | | 重量 | 2,000kg まで | | | | | | | | | | | | |

≪ 磯辺パーキング/ゴンドラ式立体駐車場 ≫
■月極賃貸駐車場■
★☆賃料改定致しました★☆
所在地:神戸市中央区磯辺通2丁目313,314(地番)
交通:全線『三宮』駅 徒歩10分
空き台数:19台
- ゴンドラ機械式立体駐車場
- 賃料:24,150円
- 保証金:23,000円(6ヶ月以上契約の場合、解約時全額返金)
- 24時間入出庫可能
- 平日昼間管理人常駐
- 5台以上利用の場合割引制度あり
◇注意事項◇
注1)割引利用の場合、一部解約等で台数が減少した場合、賃料は変更されます
注2)契約後、機械の取扱い説明を現地にて行いますので、必ず入庫車両と共に受けて下さい
注3)「シーマ」「セルシオ」は入庫不可(サイズオーバー)。改造車については、契約をお断りしています
| 規定サイズ | | | | | | | | | | | | | ⇒車検証にて規定サイズに | | 全長 | 5,000㎜ 以下 | | | | | | | | | | | | 収まるかを必ず | | 全幅 | 1,950㎜ 以下 (ドアミラー含む) | | | | | | | | | | | | ご確認ください | | 全高 | 1,550㎜ 以下 | | | | | | | | | | | | | | 重量 | 1,600kg 以下 | | | | | | | | | | | | |
≪ ローレル春日野道駐車場 6番 ≫ ※申込みあり※
■月極機械式駐車場■
所在地:神戸市中央区八雲通1丁目1-4
交通:阪急/阪神線「春日野道」駅 徒歩5分/徒歩3分
空き区画:6番
- 機械式2段 南側下段
- 賃料:15,000円
- 保証金:15,000円
| 規定サイズ | | | | | | | | | | | | | ⇒車検証にて規定サイズ | | 全長 | 4,700㎜以下 | | | | | | | | | | | | に収まるかを必ず | | 全幅 | 1,800㎜以下 | | | | | | | | | | | | ご確認ください | | 全高(上段) | 1,550㎜以下 | | | | | | | | | | | | | | (下段) | 1,500㎜以下 | | | | | | | | | | | | | | 重量 | 1,600㎏以下 | | | | | | | | | | | | |
 |  | | 機械式2段 南側下段6番 |
≪ ローレル板宿戸崎通駐車場 ≫
所在地:神戸市長田区戸崎通3丁目2-11(住居表示)
交通:山陽/地下鉄線『板宿』駅 徒歩10分
- 機械式2段駐車場
- 賃料:上段15,000円 下段10,000円
- 保証金:賃料の1カ月分(6ヶ月以上契約の場合、解約時全額返金)
| 規定サイズ | | | | | | | | | | | | | ⇒車検証にて規定サイズ | | 全長 | 4,700㎜ | | | | | | | | | | | | に収まるかを必ず | | 全幅 | 1,700㎜ | | | | | | | | | | | | ご確認ください | | 全高上段 | ハイルーフ可 | | | | | | | | | | | | | | 下段 | 1,500㎜ | | | | | | | | | | | | | | 重量 | 1,600㎏ | | | | | | | | | | | | |
【 空き予定区画:9(下) 11(下) 15(下) 】
≪ 宮丘町2丁目駐車場 ≫ 山麓線沿い!平面駐車場!
所在地:神戸市長田区宮丘町2丁目5-2
交通:山陽/地下鉄線『板宿』駅 徒歩15分
- 平面駐車場
- 賃料:16,800円
- 保証金:賃料の1カ月分(6ヶ月以上契約の場合、解約時全額返金)
【空き区画: ④ ⑤ 】
≪ カーピット元町通駐車場/パレット機械式 ≫
■月極賃貸駐車場■
所在地:神戸市中央区元町通5丁目2-18
交通:神戸高速線「西元町」駅 徒歩2分
空き区画:後号機 5/17/23/38/49/55 6台
- 賃料:25,000円
- 保証金:25,000円(6ヶ月以上契約の場合、解約時全額返金)
- 24時間入出庫可能
- 3台以上利用の場合、割引制度あり
◇注意事項◇
注1)割引利用の場合、一部解約等で台数が減少した場合、賃料は変更されます
注2)契約後、機械の取扱い説明を現地にて行いますので、必ず入庫車両と共に受けて下さい
注3)「シーマ」「セルシオ」は入庫不可(サイズオーバー)。改造車については、契約をお断りしています
| 規定サイズ | | | | | | | | | | | | 車検証にて規定サイズに | | 全長 | 5,050㎜以下 | | | | | | | | | | | おさまるかを必ず | | 全巾 | 1,850㎜以下 | | | | | | | | | | | 確認してください | | 全高 | 1,550㎜以下 | | | | | | | | | | | | | 重量 | 1,600㎏以下 | | | | | | | | | | | |

|